Definición del caso
Due Diligence técnica y urbanística, planteamiento de la estrategia de intervención a nivel de licencias y análisis de viabilidad de posibles usos en edificio residencial histórico
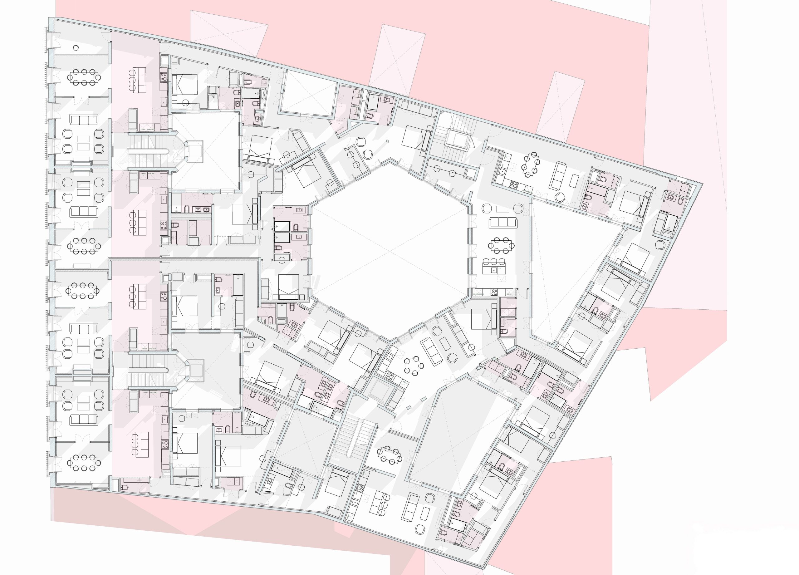
Descripción de la intervención
En la fase de compra se desarrolló un estudio técnico y de viabilidad que evaluó los usos posibles del edificio y los requisitos de licencia. Se analizaron distintas estrategias de intervención con el objetivo de optimizar los plazos administrativos en un inmueble histórico con un alto nivel de protección. El trabajo incluyó la gestión completa del proceso de tramitación de licencias en las distintas fases de proyecto y obra, así como la obtención de los informes preceptivos de las comisiones de patrimonio. La intervención incorporó actuaciones en la envolvente y la renovación de las instalaciones para mejorar la eficiencia energética del edificio, conservando sus elementos históricos característicos.
